Můj košík: 0,00  0

Do dopravy zdarma zbýva 9999,- Kč
0

Oblíbené produkty:

0
Menu

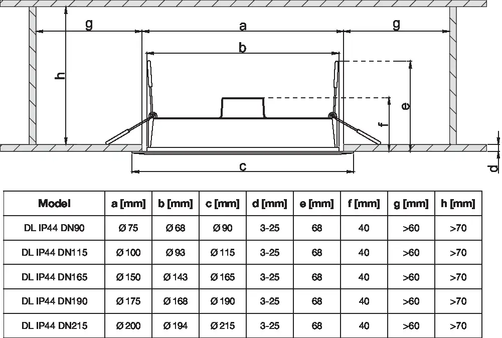
LEDVANCE rámeček pro povrch montáž pro downlight IP44 90 ;bílá

Kód Kratochvíl: OSIDLDN90IP
Výrobce: LEDVANCE
Kód výrobce 4058075709881
EAN 4058075709881
Do oblíbených
Cena produktu: 49,00 
Sklad Slaný - Na objednávku
Sklad Nová Paka - Na objednávku
Dodavatel - Na objednávku
Do košíku (ks):
  • Parametry
  • Kódy výrobce
  • Ke stažení

Parametry

Výrobce:
Výrobce LEDVANCE
Logistické informace:
EAN 4058075709881
Délka 90
Šířka 90mm
Výška 47mm
Balení 10 ks
Průměr 90 mm
Technické parametry:
Barevné provedení BÍLÁ
Délka balení 95 mm
odolnost svítidla IK03
Podskupina zboží Downlighty
přepravní rozměr cm 9.9 cm
Skupina zboží Profesionální svítidla
Šířka balení 53 mm
Výška balení 99 mm
Krytí IP44

Kódy výrobce pro jiné balení

KOD OSIDLDN90IP ks 1 ks
EAN 4058075709881 ks 1 ks
EAN 4058075709898 box 11 ks

Specifikace produktu

Rámeček pro povrchovou montáž pro Downlight IP44. Vlastnosti produktu: Robustní polykarbonátové pouzdro. Včetně montážního příslušenství. Výhody produktu: Snadná instalace. Druh použití: Přímá náhrada za svítidla s kompaktními zářivkami. Všeobecné osvětlení. Veřejné prostory. Schodiště. Chodby. Prodejny. Koupelny.